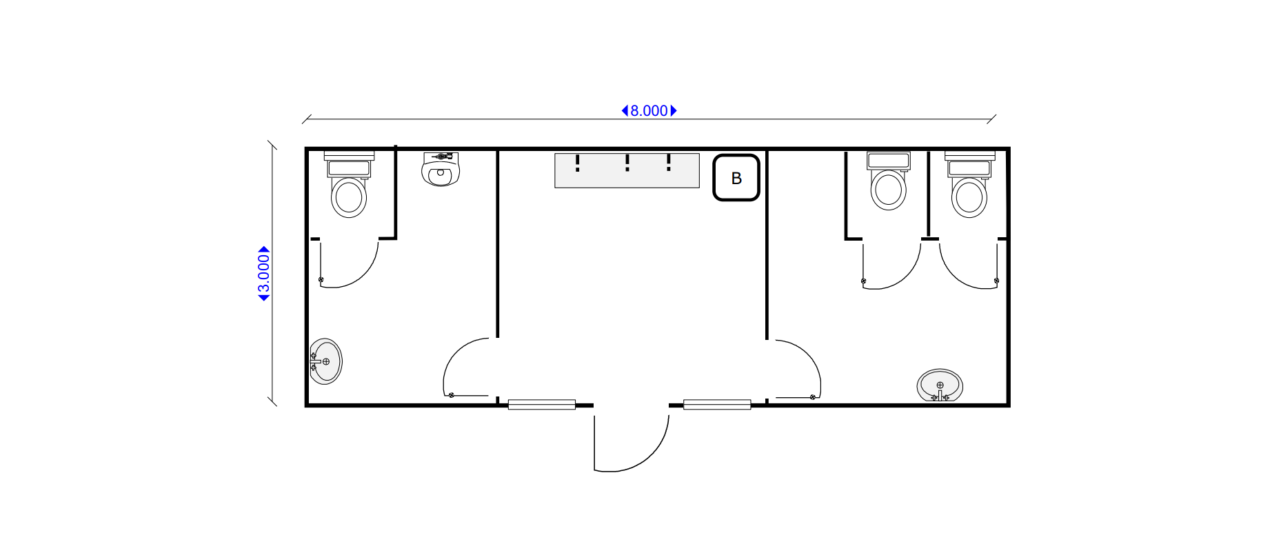
Ruime sanitair unit – 8x3x2,8meter

21441
Dames en heren gescheiden!

Degelijke unit!

Zie verdere specificaties onder de foto’s!

Toilet

Ja

PRIJS

€4.950
Ik heb interesse

Bent u op zoek naar een nette, volledig geïsoleerde unit die direct inzetbaar is als kantoor-, opslag- of sanitaire voorziening? Deze gebruiksklare unit is uitgerust met alle benodigde faciliteiten en direct beschikbaar.
Specificaties van de unit

• Afmetingen: ca. 8 × 3 × 2,4 meter
• Volledig geïsoleerd: vloer, wanden en dak
• Kunststof kozijnen: draaikiep, voorzien van dubbel glas
• Sanitaire voorzieningen:
o Aparte dames- en herentoiletten
o Wastrog met drie kranen
o Inclusief boiler
• Voorzien van elektra: meterkastje, verlichting en elektrische convector

Transport & Plaatsing
De genoemde prijs betreft een ophaalprijs excl. 21% btw.
Transport en plaatsing kunnen wij desgewenst volledig voor u verzorgen.

Naar welk adres mag de unit geleverd worden?

Bezichtiging
De unit is op afspraak te bezichtigen in Roosendaal, Noord Brabant.
Ref. nummer: 21441

Lees verder
Afmetingen

Neem contact op over Ruime sanitair unit – 8x3x2,8meter

Ik heb interesse in